Großspeichersysteme

Großspeichersysteme – Schlüsseltechnologie für die Energiewende

Großspeichersysteme – Schlüsseltechnologie für die Energiewende

Mit dem rasanten Ausbau erneuerbarer Energien wächst auch der Bedarf an leistungsfähigen Großspeichersystemen. Sie bilden das Rückgrat einer stabilen und flexiblen Energieinfrastruktur, indem sie überschüssige Energie aus Photovoltaik- und Windkraftanlagen zwischenspeichern und bei Bedarf wieder ins Netz einspeisen. 

Großspeicher kommen vor allem bei Energieversorgern, Netzbetreibern, Stadtwerken sowie in großen Industrieanwendungen zum Einsatz. Ob zur Frequenzhaltung, zur Netzentlastung oder als Peak-Shaving-Lösung – moderne Speicherlösungen leisten einen entscheidenden Beitrag zur Netzstabilität und zur Reduzierung fossiler Energiequellen. 

Unsere Systeme sind skalierbar, netzkonform (z. B. VDE-AR-N 4110/4120) und bereit für die Integration in bestehende EMS- und Netzregelungsstrukturen. 

Unsere Lösungsvorteile im Überblick

1. Integrierte Trafostation 

Unsere Systeme verfügen über eine vollständig integrierte Mittelspannungslösung – inklusive Transformatorstation. Das reduziert die Anzahl externer Schnittstellen, vereinfacht die Installation vor Ort und ermöglicht einen direkten Anschluss an das Mittelspannungsnetz.

2. String-Wechselrichter

Die modulare und verteilte PCS-Topologie reduziert Risiken wie Überladung, Zirkulationsströme und thermisches Durchgehen. Das erhöht nicht nur die Betriebssicherheit, sondern verlängert auch die Lebensdauer des Batteriesystems, senkt die Gesamtbetriebskosten und steigert den Systemwirkungsgrad. 

3. Maßgeschneiderte Systemkonzepte 

Wir entwickeln individuelle Lösungen, die exakt auf die spezifischen Projektanforderungen abgestimmt sind – für maximale Effizienz, langfristige Betriebssicherheit und Investitionssicherheit. 

4. Erweiterte Kommunikations- und Netzschnittstellen 

Unsere Speicherlösungen sind mit modernen Schnittstellen wie Modbus TCP ausgestattet und lassen sich nahtlos in bestehende Leitsysteme und EMS-Plattformen integrieren – inklusive Fernüberwachung und Regelung. 

5. Hohe Skalierbarkeit und Flexibilität 

Ob 2,5 MW oder 100 MW – unsere Systeme sind skalierbar aufgebaut, wodurch sich Lösungen sowohl für kleinere Gewerbeeinheiten als auch für große Versorgungsanwendungen realisieren lassen. 

6. Vorkonfektionierte Containerlösung 

Unsere Plug-and-Play-Container (20/40 Fuß) sind werkseitig geprüft, vollständig vorkonfektioniert und auf maximale Bauzeiteffizienz ausgelegt – ideal für internationale EPC-Partner. 

7. Netzkonformität & Zertifizierungen 

Unsere Systeme entsprechen den Anforderungen gemäß VDE-AR-N 4110 / 4120 / EN50549 u.v.m. und sind bereit für den europäischen Energiemarkt. Ggf. auch mit EZA-Regler. 

8. Sicherheitskonzept nach Industriestandard 

Mehrstufiges Sicherheitsdesign inkl. Brandschutz, Zellüberwachung, Notabschaltung und modularem Fault Management – konform mit IEC 62619, UN38.3 etc. 

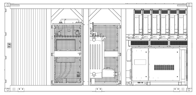
All-in-One PCS-System

Power Horizon L

Die All-in-One PCS-System besteht aus einem Standard-Container, einem Transformator, einem Niederspannungsschrank, einer Mittelspannungs-Ringkabelschaltanlage (RMU) und einem Verteilerschrank. Der Container ist in vier Hauptbereiche unterteilt: den Hochspannungsraum, den Transformatorraum, den PCS-Raum sowie den Verteilungsraum

Der Hochspannungsraum dient in erster Linie zur Aufnahme der Mittelspannungs-Ringkabelschaltanlage (RMU). Der Transformatorraum verfügt über eine Gittertürstruktur und enthält den Mittelspannungstransformator. Im PCS-Raum ist das Power Conversion System (PCS) untergebracht. Der Verteilungsraum integriert Überwachungs- und Steuerungseinrichtungen, Hilfstransformatoren, eine USV (unterbrechungsfreie Stromversorgung) sowie weitere Komponenten. 

Anfragen

1500V / 5MWh Flüssigkeitsgekühlter Batteriecontainer

Das System basiert auf einem standardisierten 20-Fuß-Container, verwendet ein kompaktes Design ohne Begehbarkeit und ist mit einer einseitigen Wartungstür mit großer Öffnung ausgestattet, um den Anforderungen an eine hochdichte Energiespeicherinstallation gerecht zu werden. 

Das Batteriespeicherfach nutzt Lithium-Eisenphosphat-Zellen (LFP) mit einer Kapazität von 314 Ah. Diese Zellen werden in der Konfiguration 1P104S in Reihe geschaltet, um ein standardisiertes Batteriemodul (Pack) mit einer Nennenergie von 104,5 kWh zu bilden. Vier solcher Module bilden einen Batterie-Cluster. 

Der Container enthält die Batterien, das Batteriemanagementsystem (BMS), die Hochspannungsbox, das Thermomanagementsystem, die Brandschutzanlage sowie das Beleuchtungssystem. 

Anfragen

Kontakt